南通“广安杯”建筑设计竞赛方案
一、项目名称
赛项名称:南通“广安杯”建筑设计竞赛
二、大赛目的
为加快推进公司高职公司产品改革,不断提高员工实践能力和创新能力,检验员工创新、设计能力,适应建筑设计单位生产一线技术岗位的要求,实现“以赛促学,以赛促教”的目的。
三、大赛方式与内容
1、参赛对象及竞赛方式
参赛对象为本公司建筑设计专业在籍全日制员工,性别、年龄不限;竞赛采取个人比赛方式。
2、竞赛内容
建筑的设计及建造过程总是在一定条件下展开的,并经历着从抽象到具体,抑或从具体到抽象,乃至不断反复的过程。所谓“一定的条件”,可能关乎具体的气候、环境、地形,等等。所谓“具体”和“抽象”,可能关乎光线、气味、质感、材料、构造、建造、思考、方法、几何、关系、图形、功能,等等。
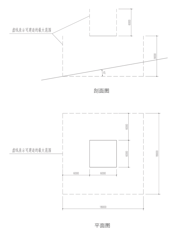
本次竞赛为设计者提供了一个略具抽象的基地,在绵延坡度为10度、18m×18m投影见方的场地正中上方,还有一块6m×6m见方的空中水平基地,建筑的可建造范围将被限定(任意小于但不超过)在如图虚线所示的两个立方体范围内,上部立方体为6(长)×6(宽)×6(高)m,下部立方体为18(长)×18(宽)×9(高)m。场地朝向自定,气候可根据参赛者家乡所在地的具体气候或假想为寒冷的、炎热的、多雨的、干旱的、多风的、阳光充足的......,环境可以是丛林、草地、沙滩......,功能安排在上部立方体范围内须为居住,下部立方体范围内功能不限(居住或其他),但上下功能需能并置成立。上述朝向、气候、环境不限但必须自我设定。
说明:方案可以是一个建筑师之家,可以是一个乡村希望小学单元体,可以是一个小型客栈,亦或者是一个宠物救护站,评委会期待看到每一位参赛者在设定条件下的充满想象力的设计。

3、竞赛时间
(1)2017年9月-2017年10月,截止时间2017年10月27日。
4、竞赛成果文件
(1)方案设计说明,总平面、平面、立面、剖面设计电子档;
(2)方案透视效果图或模型照片(JPG格式);
(3)展板一块,以上内容均须排版在A1(尺寸大小600x840mm)展板上,
竖向排版;
(4)在图纸背面必须写上所有参赛者的姓名、班级、学号及联系电话,
如有指导教师,请写上教师姓名、联系电话。
5、评奖
由建筑设计与太阳成tyc33455ccwww相关专业老师与南通广安建筑安装工程有限公司
专家组成评委会进行评奖。
6、奖项设置
一等奖:2名奖金和奖状
二等奖:4名奖金和奖状
三等奖:6名奖金和奖状
7、其他
1. 参赛作品不得侵害他人的著作权,不得使用复制、拷贝自其他杂志、书籍、网络的图片内容,如有发现,一律取消参赛资格及奖项。
2. 提交的参赛图纸归公司所有。
3. 参赛作品的著作权归作者本人,但参赛作品的出版权归公司所有。
8、赛项联系人
联系人:但功水老师
建筑设计与太阳成tyc33455ccwww
2017年9月15号


